BBIN·宝盈集团(中国)有限公司官网
关于宝盈
公司介绍
品牌介绍
新闻中心
产品中心
制冰机
冷柜
洗碗机
展示柜
饮料机
我要开店
茶饮
咖啡
餐饮
酒吧
烘焙
服务中心
网上即时报修
资料下载
bbin宝盈集团官网
企鹅教室
报修专线
400-908-9088
我要开店
专业厨具制造商 餐饮的合作伙伴
茶饮
堂吃
外带
咖啡
- 堂吃
堂吃
外带
餐饮
中餐
西餐
日式餐饮
火锅店
酒吧
酒吧
烘焙
蛋糕店
面包房
不易融化,剔透晶莹
宝盈方冰制冰机
性价比之王,实惠又好用
艾世铭制冰机
高透屏,让美味无处遁形
艾世铭蛋糕柜
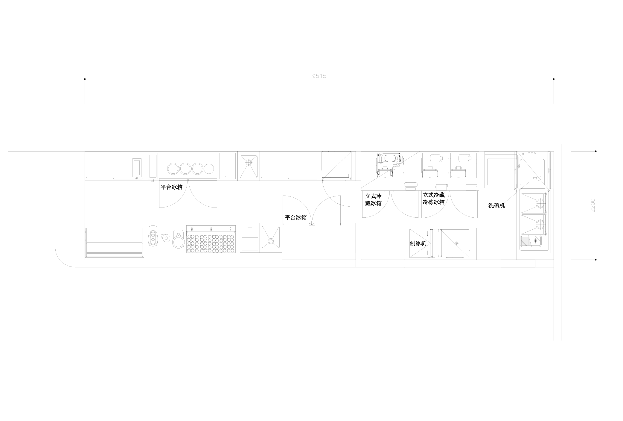
店铺展示
店铺图纸
冷柜
HR-128MC
宝盈立式冷藏柜 M系列
温度范围:冷藏 -6℃~+12℃
HF-128MC
宝盈立式冷冻柜 M系列
温度范围:冷冻 -25℃~-7℃
HRF-128MC
宝盈立式冷冻冷藏双温柜 M系列
-25~-7℃ / -6~+12℃
RT-128MC
宝盈平台冷藏柜 M系列
-6~+12℃ / 深750mm
RT-188MC
宝盈平台冷藏柜 M系列
-6~+12℃ / 深750mm
bbin宝盈集团官网立即获取定制化的制冰方案!
立即获取